Casa indipendente in vendita

Dolianova, Vico III Dei Pisani
€ 115.000
2 locali 2 locali
57 Mq 57 Mq
1 bagno 1 bagno

Casa indipendente in vendita

Dolianova, Vico III Dei Pisani

Descrizione annuncio

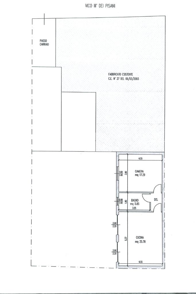
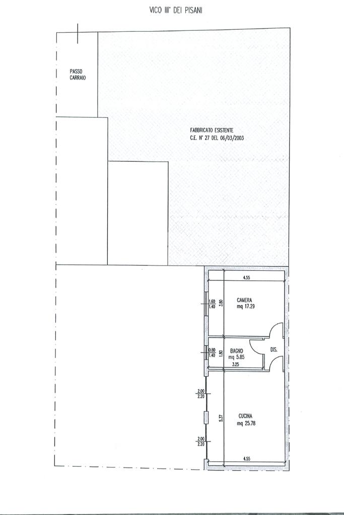
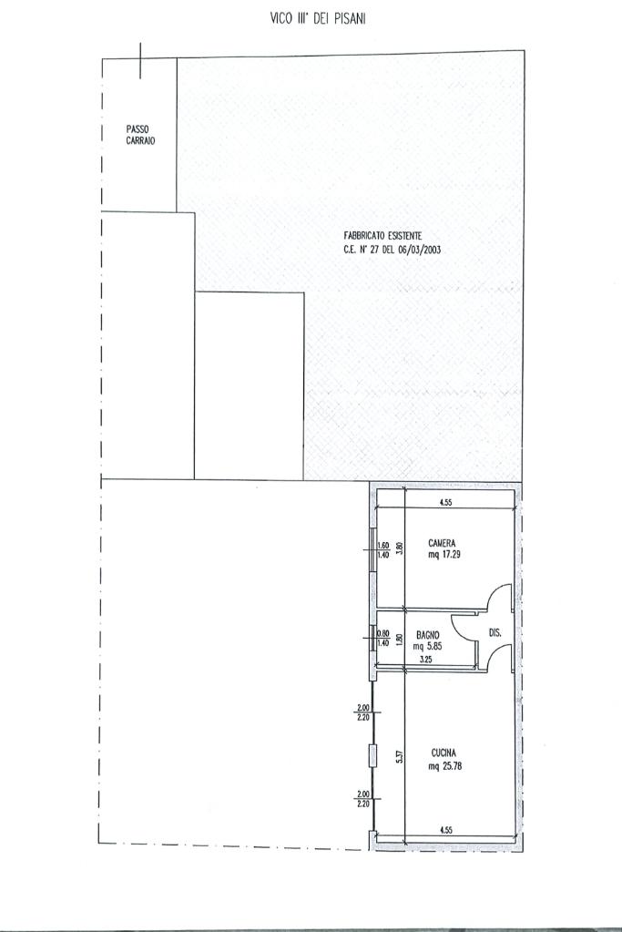
Proponiamo in vendita, in una zona centrale e ben servita di Dolianova, un bivano indipendente di recente costruzione, sito al piano terra. Accedendo alla soluzione troviamo la luminosa zona living con angolo cottura e affaccio sul giardino dell'immobile. Proseguendo internamente, passando per il disimpegno, troviamo il bagno finestrato con box doccia, e l'ampia camera matrimoniale, anch'essa molto luminosa.

Ideale per chi cerca una soluzione indipendente al piano terra con uno spazio esterno vivibile, o un investimento.

Mostra tutto

Nelle vicinanze

Trasporto pubblico Trasporto pubblico
Dolianova
Dolianova
480 m
Scuole Scuole
Scuola Materna
120 m
Scuole
320 m
Scuola Media
380 m
Scuola Elementare
1,1 Km
Scuola Media E.Zuddas
1,2 Km
Farmacia Farmacia
Farmacia Tola
1,3 Km
Supermercati Supermercati
Super Pan
170 m
Eurospin Dolianova
2,2 Km
Ristoranti Ristoranti
Pizza Paradiso
1,2 Km
Agriturismo Baccu Cardu
1,5 Km
Agriturismo Santu Marcialis
1,7 Km
Mostra tutto

Caratteristiche

Rif.:
61108951
Piano:
Terra con giardino di 1
Totale piani:
1
Posti auto:
1
Terrazzi:
1
Camere da letto:
1
Mostra tutto
Prezzo Prezzo
€ 115.000
Rata mutuo Rata mutuo
€ 528 / mese
Proponi il tuo prezzoProponi il tuo prezzo

Classe Energetica

Questo immobile è esente da classe energetica
Anno di costruzione:
2021
Riscaldamento:
Autonomo
Tipo impianto:
Ad aria
Tipo alimentazione:
Aria

Ti interessa visionare l'immobile?

Fissa un appuntamento  Fissa un appuntamento

Richiedi informazioni

* Questi campi sono obbligatori

Calcola il tuo mutuo

Semplice e senza impegno
Anticipo

( % )
Mutuo

( % )

pochi semplici passi

inserisci i tuoi dati
Questionario completato
Grazie per aver richiesto un appuntamento senza impegno con un nostro Consulente del Credito e Assicurativo.

Hai inserito correttamente tutti i dati necessari e a breve riceverai una e-mail con un link da convalidare per inviare i tuoi dati.
Affiliato
Sinnai Case Srl
Via Roma, 22 09048 Sinnai (CA)

Il nostro staff


  • Alessandro Cogoni
    Collaboratore

  • Alessia Pusceddu
    Coordinatrice

  • Carlo Helmut Werner
    Collaboratore

  • Gabriele Mirigliani
    Affiliato
Via Roma, 22 09048 Sinnai (CA)
Zona: Sinnai
Mostra su mappa
Affiliato
Sinnai Case Srl
Via Roma, 22 09048 Sinnai (CA)

2025 Tecnocasa Franchising S.p.A. - P. IVA 08365160152 - Via Monte Bianco 60/A 20089 Rozzano (MI). Ogni agenzia ha un proprio titolare ed è autonoma. Privacy policy | Policy utilizzo | Cookie policy