Porzione di bifamiliare in vendita

Dolianova, Via Fratelli Rosselli
€ 200.000
4 locali 4 locali
129 Mq 129 Mq
2 bagni 2 bagni

Porzione di bifamiliare in vendita

Dolianova, Via Fratelli Rosselli

Descrizione annuncio

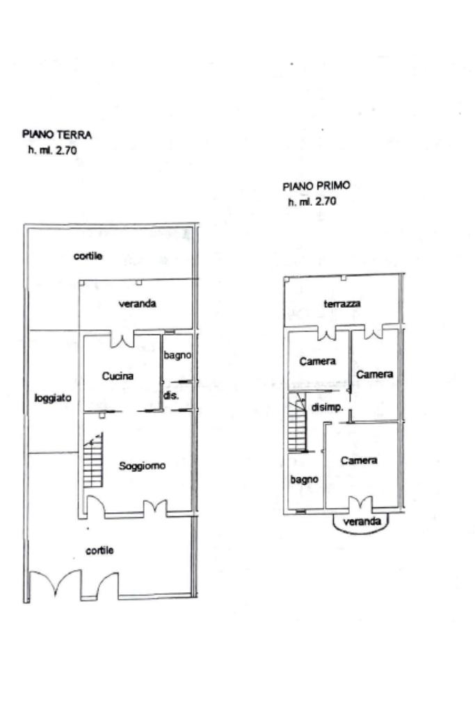
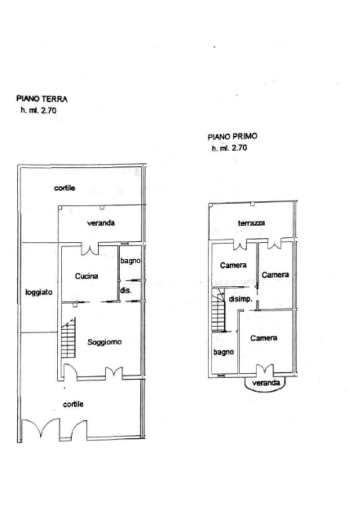
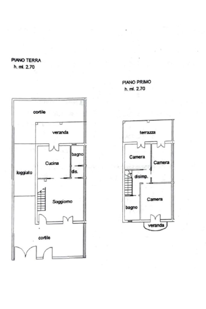
Proponiamo in vendita in una zona residenziale, tranquilla ma ben collegata di Dolianova una porzione di bifamiliare che si sviluppa su due livelli. L'immobile edificato nel 2007 è di tipologia quadrivano. Al piano terra troviamo l'ampia zona giorno con affaccio sul giardino frontale e cucina abitabile separata, la quale si affaccia sulla pertinenza esterna retrostante. Completa il piano terra, il bagno di servizio finestrato con box doccia. Mentre al piano primo la zona notte, composta da una camera matrimoniale con balcone e due camere singole, dalle quali si accede ad una terrazza vivibile. E il bagno con vasca idromassaggio.

L'immobile viene riscaldato tramite eco camino, radiatori e split presenti in tutti gli ambienti. E' dotato inoltre di pannelli solari per il riscaldamento dell'acqua sanitaria. Verrebbe venduto completo di angolo cottura.

A concludere la descrizione abbiamo una pertinenza esterna su tre lati dell'immobile.

Mostra tutto

Nelle vicinanze

Trasporto pubblico Trasporto pubblico
Dolianova
Dolianova
1,6 Km
Scuole Scuole
Scuole
870 m
Scuola Media
970 m
Scuola Materna
1,2 Km
Scuola Elementare
2,2 Km
Scuola Media E.Zuddas
2,4 Km
Farmacia Farmacia
Farmacia Tola
2,5 Km
Supermercati Supermercati
Super Pan
980 m
Ristoranti Ristoranti
Agriturismo Baccu Cardu
1,5 Km
Pizza Paradiso
2,3 Km
Agriturismo Santu Marcialis
2,7 Km
Mostra tutto

Caratteristiche

Rif.:
61125386
Piano:
2 di 1 (Piano su più livelli)
Posti auto:
1
Balconi:
1
Terrazzi:
1
Camere da letto:
3
Mostra tutto
Prezzo Prezzo
€ 200.000
Rata mutuo Rata mutuo
€ 919 / mese
Proponi il tuo prezzoProponi il tuo prezzo

Classe Energetica

Questo immobile è esente da classe energetica
Anno di costruzione:
2007
Riscaldamento:
Autonomo
Tipo impianto:
A radiatori
Tipo alimentazione:
Altro

Ti interessa visionare l'immobile?

Fissa un appuntamento  Fissa un appuntamento

Richiedi informazioni

* Questi campi sono obbligatori

Calcola il tuo mutuo

Semplice e senza impegno
Anticipo

( % )
Mutuo

( % )

pochi semplici passi

inserisci i tuoi dati
Questionario completato
Grazie per aver richiesto un appuntamento senza impegno con un nostro Consulente del Credito e Assicurativo.

Hai inserito correttamente tutti i dati necessari e a breve riceverai una e-mail con un link da convalidare per inviare i tuoi dati.
Affiliato
Sinnai Case Srl
Via Roma, 22 09048 Sinnai (CA)

Il nostro staff


  • Alessandro Cogoni
    Collaboratore

  • Alessia Pusceddu
    Coordinatrice

  • Carlo Helmut Werner
    Collaboratore

  • Gabriele Mirigliani
    Affiliato
Via Roma, 22 09048 Sinnai (CA)
Zona: Sinnai
Mostra su mappa
Affiliato
Sinnai Case Srl
Via Roma, 22 09048 Sinnai (CA)

2025 Tecnocasa Franchising S.p.A. - P. IVA 08365160152 - Via Monte Bianco 60/A 20089 Rozzano (MI). Ogni agenzia ha un proprio titolare ed è autonoma. Privacy policy | Policy utilizzo | Cookie policy